厨房设备源头厂家

一站式商用厨房设备、中央厨房设备解决方案

产品中心解决方案项目案例了解米兰网页版官网入口
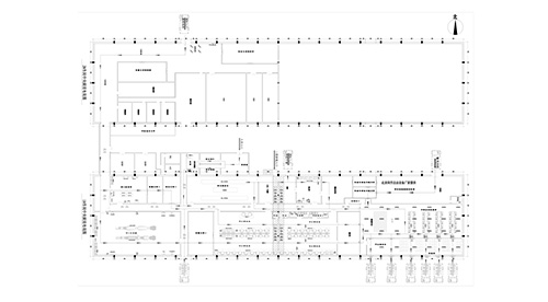
  • 团体配餐类中央厨房设计图例

  • 快餐连锁类中央厨房设计图例

  • 净菜加工类中央厨房设计图例

  • 主食加工类中央厨房设计图例

米兰网页版官网入口服务客户

了解米兰网页版官网入口

米兰网页版官网入口(china)官方网站有限公司,是一家集研发、设计、生产、安装、服务为一体的综合化中央厨房设备制造企业。 始建于一九六八年(原称兰宇燃气设备有限公司),一九八六年公司与煤气公司、清华大学共同研制、生产调压器、调压箱燃气设备。此产品填补了国内空白,被广泛应用于市政的煤气管网建设,继后与公用事业科研所共同研发生产了中餐炒菜灶、中餐大锅灶、燃气蒸 箱、燃气开水炉等厨房产品,并且在大型器皿消毒方面研发出的二星消毒产品消毒库申请了国家专利技术。随着我国市场的开放和经济的快速发展,企业在2000年成功的完成了内部改制后,也随之完成了厨房设备的专业化、规模化、集团化的转型:公司正式更名为:米兰网页版官网入口(china)官方网站有限公司。
公司在社会各界新老客户的鼎力支持与帮助下,不断的发展壮大。现公司现有职工120余人,其中高级管理人员、技术人员30余人。厂区占地面积3万 多平方米,办公楼3000多平方米。拥有着先进的生产设备和一流的生产施工技术人员、高素质的售后服务团体。年生产量可达一万多台(套)。+ 了解更多

资质荣誉

雄厚的企业实力和科学完善的质量体系是产品品质的保证!米兰网页版官网入口先后取得:CEP环保认证、中国节能产品认证、中国环保产品认证、北京市高新技术企业认证和若干新型专利证书。+了解更多